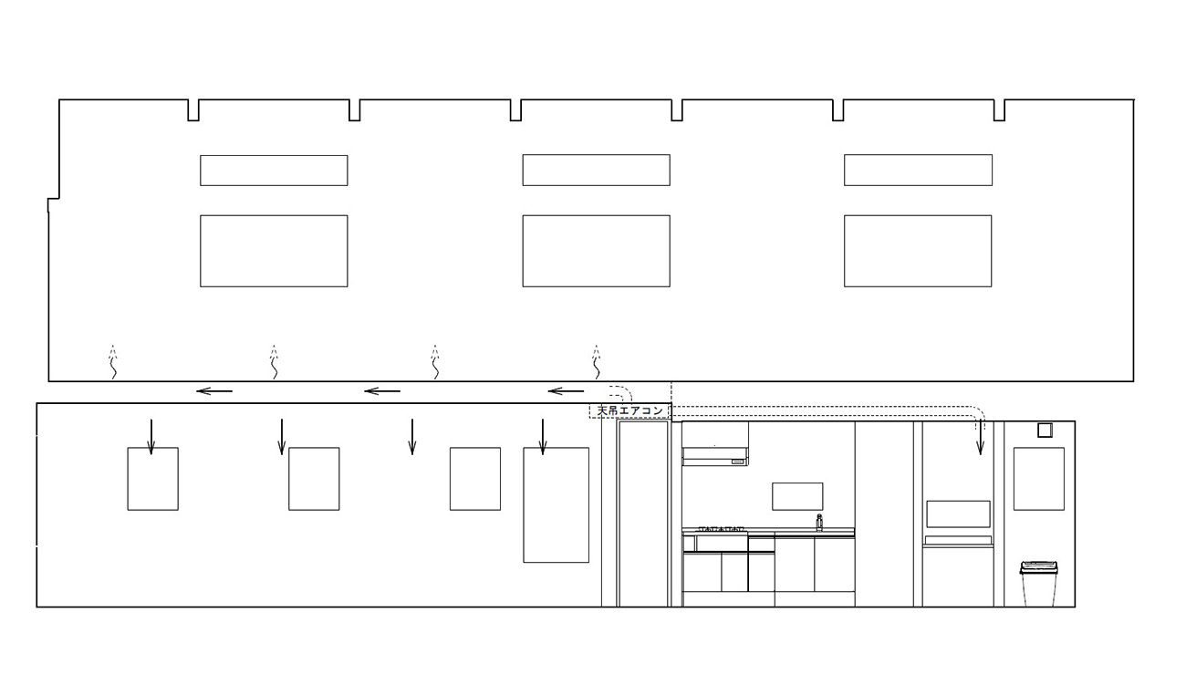
階間エアコン
事務所のエアコンが先週故障しました。
設置後10年で2回目の故障ですが、修理するにあたり下記の3つの選択を考えました。
①設置場所が2Fであるため、階間エアコンのような新システムを試す
②新しいものに交換する
③費用を払い点検後、修理依頼する
①が一番やってみたかったのですが、システムの設計と調査に時間が掛かるため得策ではないと判断。
故障した翌日はとても寒く、早急に対応出来る方が優先となりました。
将来のために、1階のエアコンをリモデルして出来ないか調査は継続することにしてます。
②高効率型のエアコンを新規に購入し長期保証を付ける。
これも納期に時間が掛かるため修理見積次第で考えることになりました。
③メーカーからの出張料と作業費で5,170円掛かるのですが、修理内容と費用は点検後になります。
持ち合わせている部品があれば即日修理可能との事でしたのでスピード優先でこの選択となりました。
結果は、点検調査の際に復旧してしまい原因不明ですが調子の良くない部品はここだろうという事で見積りして頂く事となりました。
先ずは、寒い環境から解放されたのが何よりでした。

階間エアコン…試してみたいと思いながら今日も仕事に励んでます。
鈴木康志

